skip to main |
skip to sidebar
El concurso para el centro de interpretación partía de la necesidad de un espacio en el límite de la extensión del pinar- siempre-verde, desde donde se visita el Parque Natural. Pensábamos que el entorno, no solo el parque inmediato, sino el paisaje, debía formar parte de lo que el visitante vive en el edificio, que debía emocionar y motivar la visita atenta y responsable del Parque.
El edificio es una lámina de hormigón pretensado del mínimo espesor, que cubre la exposición. Queda vista al interior y se apoya en el núcleo central, de los únicos espacios cerrados, y en el “cercado” perimetral de palastros verticales que configura el espacio exterior e ilumina el interior. Con sus pliegues se adapta a las condiciones de contorno de la topografía, se levanta en la entrada y acompaña al visitante en un recorrido desde el acceso hasta la salida en un nivel superior, y bajando desde ahí, ya en el exterior, a través del los jardines, la bajada de agua, hasta el nuevo bosque.
El material en el exterior habla del color de la tierra de la zona, y de las cubiertas cerámicas, con una plaqueta cerámica adherida. Se han planteado materiales de nulo mantenimiento y bajo consumo energético.
La ventilación continúa en el perímetro favorecida por la zona de sombra y humedad, ayudando a refrescar en verano, época en la que el edificio será más frecuentemente utilizado.

Los empleados de la compañía Coca-Cola España, debieran trabajar en una sede sencilla y exacta.
El ornamento, el detalle arquitectónico formal, está fuera de lugar, como lo está inventar siluetas nuevas a la marca. Siempre hemos pensado que el material debe usarse de manera precisa, sin anécdotas que distraigan, ayudando a la comprensión global, y desprendido de lo accesorio. La compañía no puede permitirse, como tampoco la buena arquitectura, estar al albur de las modas pasajeras.
Se trata de dos edificios conectados en la plataforma de acceso con amplios espacios libres, que se abren hacia el espacio de eventos, acotado por ese corazón acristalado a la M40. El resto de las fachadas no presumen de vidrio donde detrás tiene que existir un paramento opaco y resistente al fuego; solo en ése interior de cristalografía la doble piel ventilada permite trasparencias y vistas cruzadas.
“Trabajarán en una sede abierta al mundo, en un edificio-joya, que ofrece lo mejor en su corazón.” Decíamos en el concurso. Coca-Cola nos sobrevivirá; al equipo de arquitectos, a los directivos de la compañía.
Esta oficina de arquitectura empezó a trabajar imaginando empleados contentos con el marco en que les toca pasar la jornada. Los grandes espacios libres, la plataforma inclinada vegetales, las zonas ajardinadas, los eventos, el deporte, no son mérito propio; ya estaban en las bases. 

En el Cerro Molina no había nada, no crecía nada. Un cerro que por no tener no tenía ni sombra. Un universo de tierra estéril al margen de todo, incluso al margen de su ubicación estratégica, entre las Cuencas antigua y moderna. Un cerro romo que, por no tener, no tenía ni sombra.
El objetivo era conseguir un lugar, no solo un hito reconocible. Crear de la nada un entorno equivalente a seis campos de fútbol y compartir con el edificio el protagonismo de su integración urbana.
El proyecto surgió como una suma de evocaciones del paisaje: los farallones, los callejones, los lapiaces, formas de un kars al que tanto debe la ciudad, y entre el homenaje a uno y la deuda a la otra, el edificio se hizo invisible desde la naturaleza y simbólico desde la ciudad, con sus grandes ventanales-imagen de vidrio sin carpintería de 100 m² cada uno.
El edificio, formado por cuatro piezas con cierta autonomía formal y funcional se relaciona con el parque a través de diferentes recorridos coincidentes con los niveles interiores. El agua y la vegetación entran también en el interior y la geometría pétrea coloniza y moldea el entorno edificado.
Las fachadas de doble piel de vidrio, bioclimáticas, con una familia de instalaciones estructuras, celosías y tamices, tienen casi un metro de espesor, de manera que la totalidad de la exposición puede contenerse en la piel, y se acomodan al uso en invierno o verano.
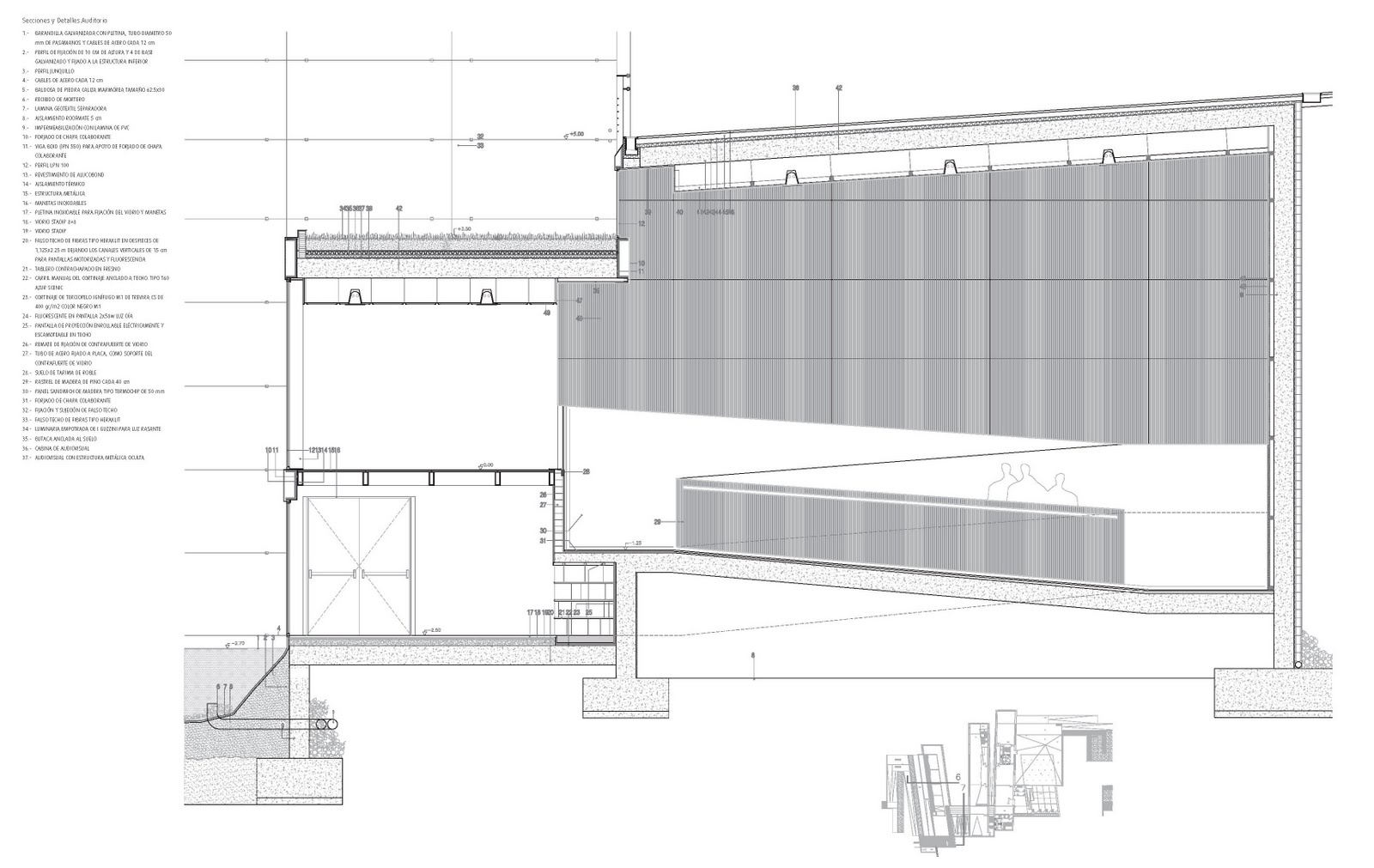
El acceso se produce bajo el gran voladizo del auditorio. Las cubiertas, convertidas en plataformas que se pueden recorrer, trasladan al espectador a un interior luminoso. Un interior donde al anochecer recorren la fachada imágenes e historias de faunas y floras. 
